Ось трактора 400 л.с.
1. Главный редуктор с конической шестерней Gleason обеспечивает высокую эффективность трансмиссии и низкий уровень шума.
2. Планетарная зубчатая передача типа NGW отличается разумной и компактной конструкцией.
3. Картер моста из стального литья обладает высокой несущей способностью и отличной жесткостью.
4. Рабочий тормоз, оснащенный дисковым тормозом с суппортом, обеспечивает большой тормозной момент и надежность.
5. Он оснащен антипробуксовочным дифференциалом без пробуксовки, достигая коэффициента антипробуксовки 100% на грязных дорогах.
6. Подходит для тракторов мощностью 400 лошадиных сил.
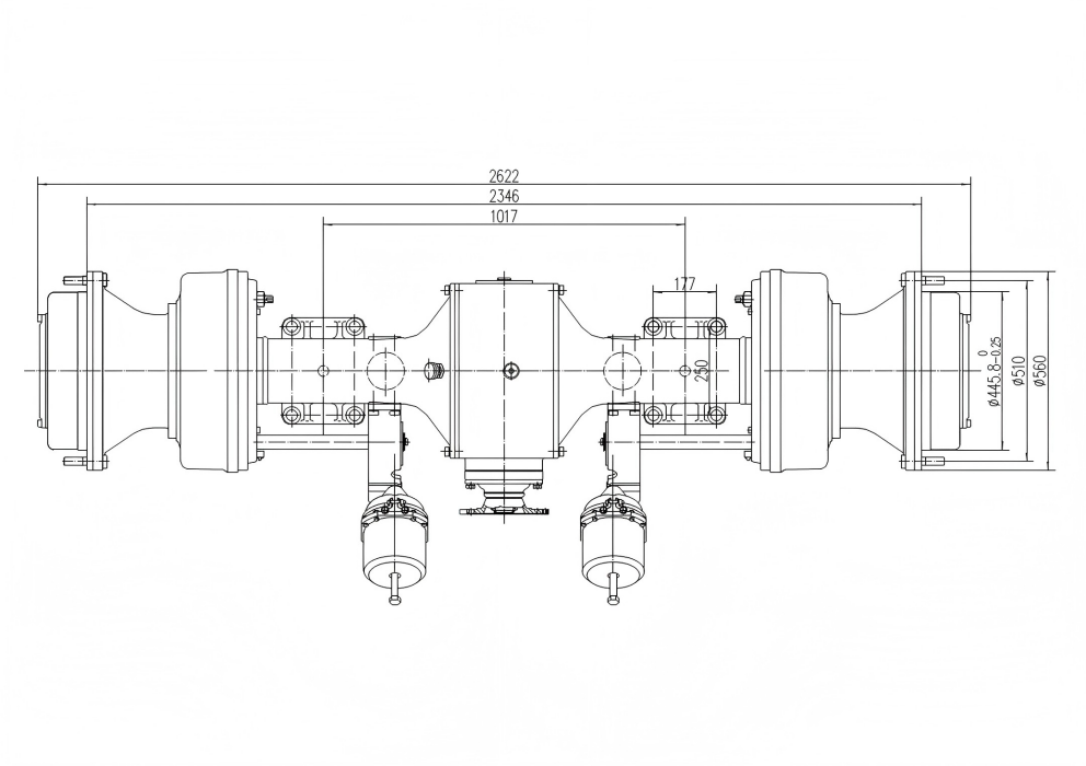
Знакомство:
Ведущий мост трактора оснащен двухступенчатой редукционной коробкой передач. В первичной ступени редуктора используется спирально-коническая система привода Gleason, в то время как в вторичном редукторе колес используется планетарный механизм типа NGW. Интегрированная трансмиссия включает в себя дифференциал без блокировки для улучшения контроля тяги, который заключен в литой стальной кожух моста для обеспечения жесткости конструкции. Тормозная система оснащена дисковыми тормозами с суппортом, обеспечивающими надежную работу при торможении и безопасность эксплуатации.
Основные технические параметры:
Общее передаточное число |
17.66 |
Максимальный входной крутящий момент |
9500 Нм |
Нагрузка на каждую ось |
28000кг |
Давление тормозного масла |
11 МПа |
Момент торможения |
13000 Нм |
Запрос масла для ведущего моста (стандарт API) |
GL-5:85W/90 Трансмиссионное масло (выше -12 °C) |
Запрос масла для тормоза |
Синтетическую тормозную жидкость DOT3 или 719, смешивать нельзя! |




